Kopfzeile

Der Frühling 2026 kann kommen!

Haus zum Kauf in Unterzögersdorf (2000) / Objektnummer: 25822

Haus zum Kauf in Unterzögersdorf (2000) 419.920 €

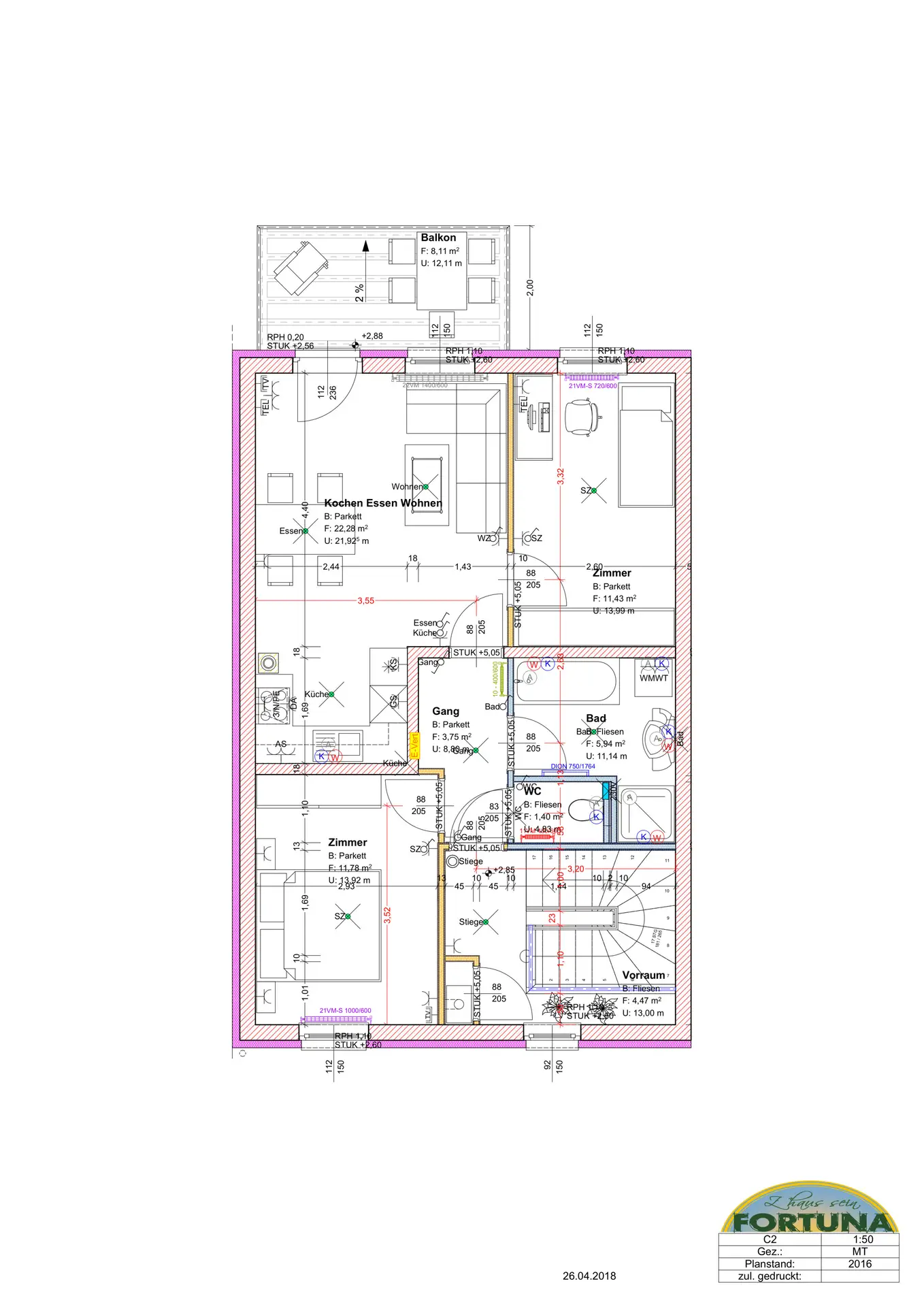
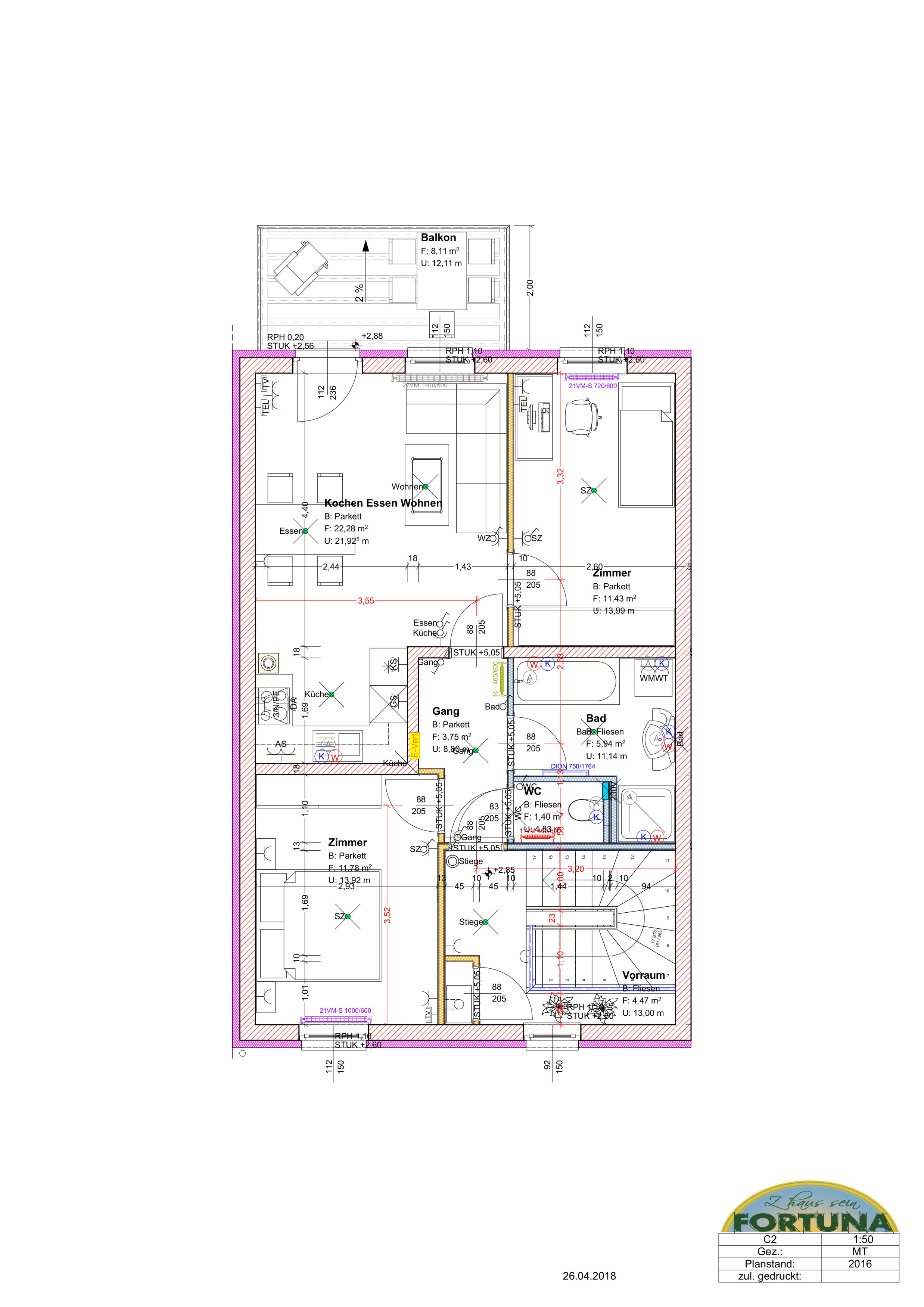
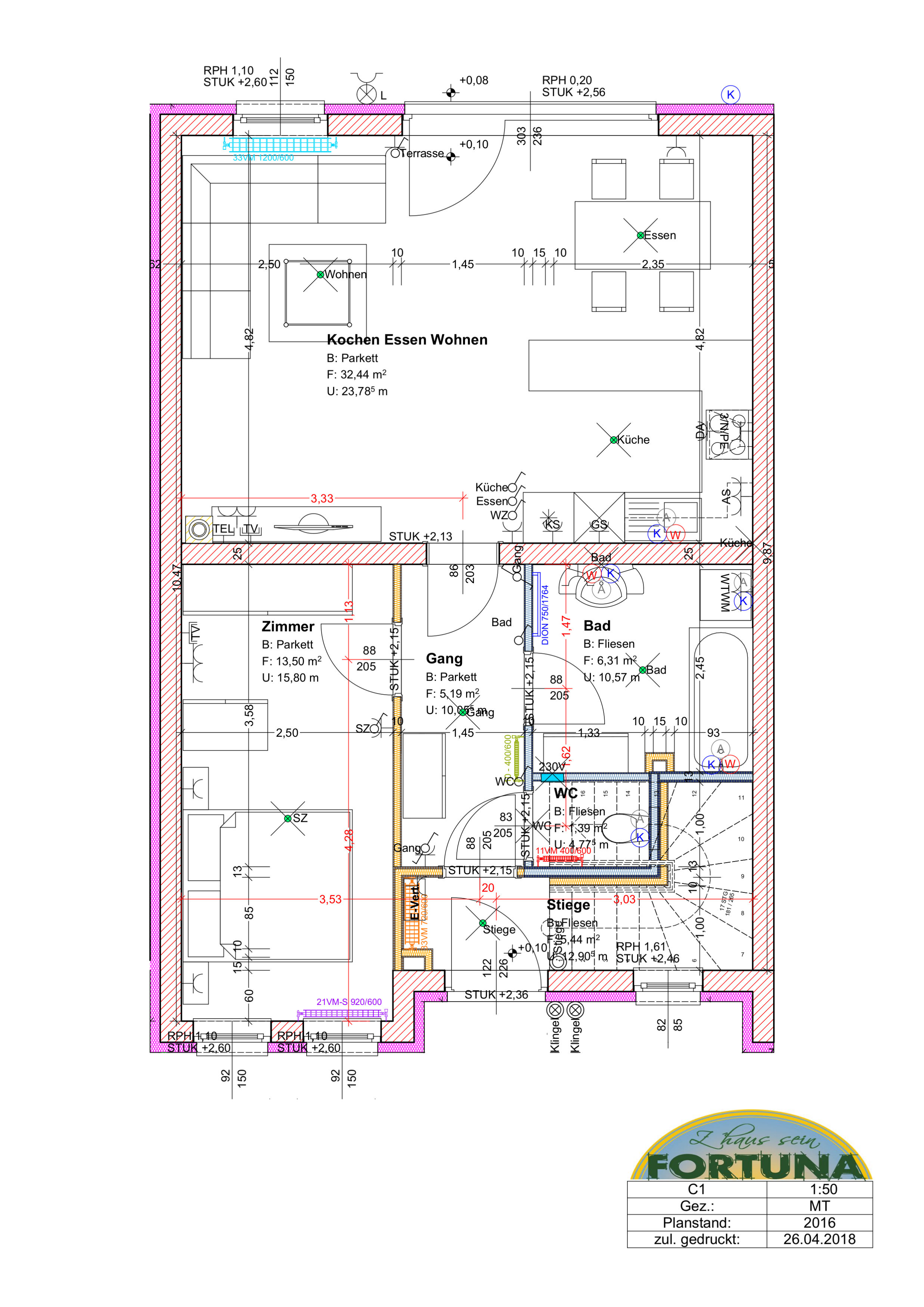
125 m² Wohnfläche

125 m² Nutzfläche

108 m² Außenfläche

BalkonTerrasseWohnkücheDuscheBadewanneStellplatzAußenstellplatzEtagenheizungGartenflächeFliesenParkett

Dieses moderne Haus (Baujahr 2016) in 2000 Stockerau bietet ca. 125 m² Wohnfläche und überzeugt durch eine flexible Raumaufteilung:
Ideal für Familien, Mehrgenerationenwohnen oder Wohnen mit getrennten Bereichen – gemeinsam leben oder klar trennen, ohne Umbauten.

Besonders praktisch im Alltag: 2 vollwertige Bäder (jeweils mit Dusche & Wanne) sowie 2 separate WCs.
Der Garten (ca. 84 m²) mit Terrasse und Balkon sorgt für entspannte Rückzugsorte im Freien.

2 Parkplätze sind im Kaufpreis inkludiert. Übergabe ab sofort möglich
Das Haus wird unmöbliert übergeben.

Der Vermittler ist als Doppelmakler tätig.

Ausstattung

Fliesen, Parkett, Gas, Etagenheizung, Wohnküche / offene Küche, Badewanne, Dusche, Parkplatz, Getrennte Toiletten, Doppel- / Mehrfachverglasung

Lage und Verkehrsanbindung

ca. 250m von der Ortsgrenze Stockerau

Lageplan

Inhalt wird geladen
Preise
Kaufpreis
419.920,00 €
Kaufpreis/m²
3.350,78 €
Vermittlungsprovision
Provision
3% des Kaufpreises zzgl. 20% USt.
Fakten
Objekttyp
Haus
Wohnfläche
125 m²
Terrassenfläche
15 m²
Balkonfläche
8 m²
Gartenfläche
85 m²
Nutzfläche
125 m²
Terrassen
1
Balkone
1
Baujahr
2016
Letzte Sanierung
2022
Gebäude
Neubau
Zustand
neuwertig
Status
verfügbar
Energieeffizienz
Energieausweisart
Energiebedarfsausweis
HWB
35,30 kWh/(m²a)
FGEE
0,72
FGEE-Klasse
B
Wolfgang Glaser

WERTIMMOBILIEN Consulting KG

Wolfgang Glaser

Geschäftsführung