 
                    
                 
                    
                 
                    
                 
                    
                 
                    
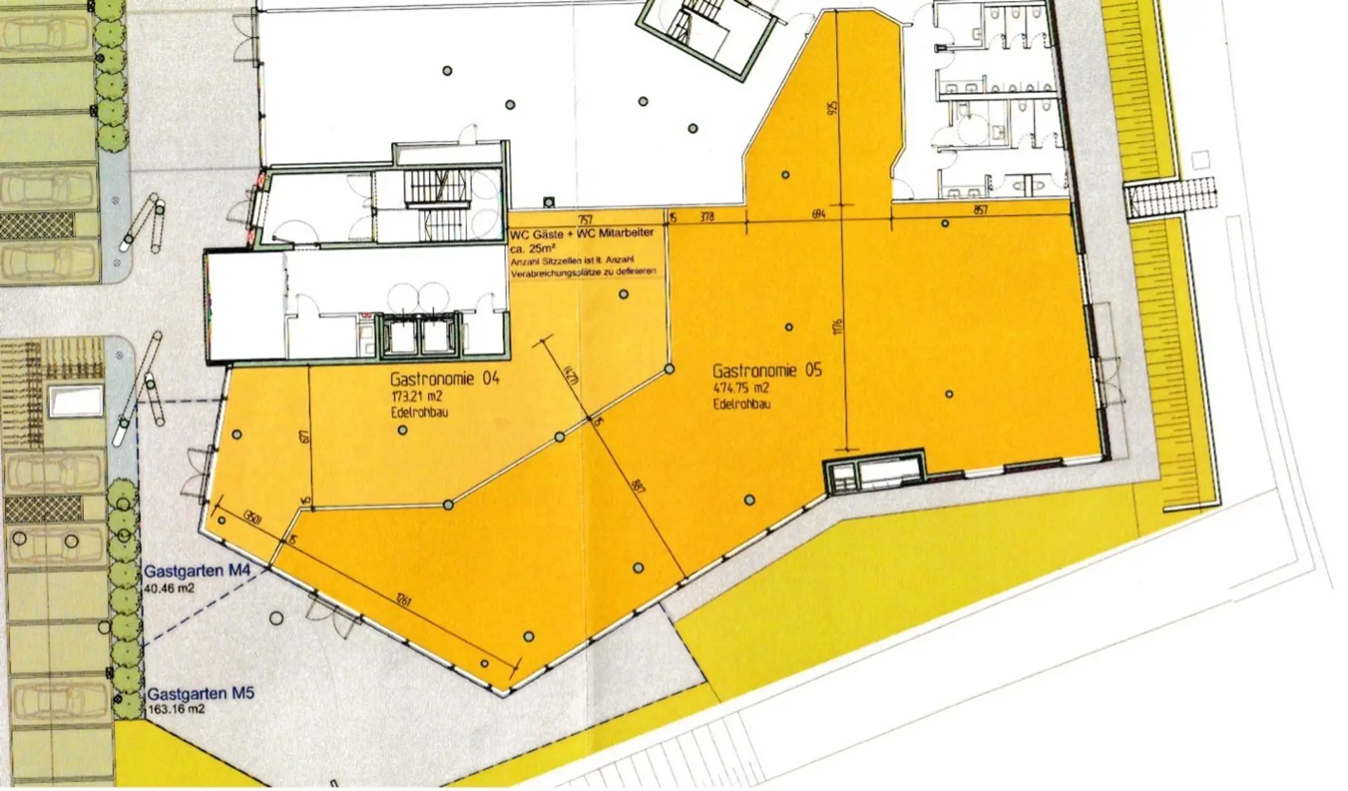
                Der angegebene Preis von € 8.260.- versteht sich für die 472 m² Innenfläche mitsamt Gartenanteil (163 m²).
ACHTUNG WICHTIGE INFORMATION: GEMÄSS DEN VORGABEN UNSERER ANBIETER – ABGEBER WERDEN DETAILLIERTE ANGABEN ÜBER DIE INTERESSENTEN BENÖTIGT. IM FALLE IHRER ANFRAGE BITTEN WIR UM ANGABE VON: FIRMENNAME / NAME, ADRESSE, TELEFON, E-MAIL.
Auf ein wirtschaftliches Naheverhältnis zum Abgeber wird hingewiesen. Alle Informationen basieren auf Angaben des Abgebers und sind somit ohne Gewähr. Der Auftraggeber wurde von der Firma Gastrotel über die gesetzliche Verpflichtung zur Vorlage eines Energiesauweises aufgeklärt, ist dieser Aufforderung bis dato jedoch noch nicht nachgekommen.
Für Fragen bzw. zur Vereinbarung einer Besichtigung erreichen Sie
Frau Jutta SCHRÖDER: 0664 307 68 59 oder Herrn Christian HILSCHER: 0664 240 71 79 bzw. per Mail: office@gastrotel.at
Wir weisen darauf hin, dass zwischen dem Vermittler und dem zu vermittelnden Dritten ein familiäres oder wirtschaftliches Naheverhältnis besteht.
Der Vermittler ist als Doppelmakler tätig.
                    Die Liegenschaft befindet sich direkt an der Autobahnabfahrt A2 - Wiener Neudorf (IZ NÖ SÜD).
In unmittelbarer Nähe gibt es zahlreiche Repräsentanzen großer Firmen und viele Parkplätze.
Das Objekt befindet sich im erweiterten Edelrohbau und erlaubt dem künftigen Mieter mit hoher Flexibilität 
den Innenausbau nach eigenen Vorstellungen zu gestalten.