Kopfzeile

Tolle Gartenwohnung - Erstbezug nach Sanierung

Wohnung zum Kauf in Traismauer (3133), Amselgasse / Objektnummer: 25768

Wohnung zum Kauf in Traismauer (3133) 185.900 €

2 Zimmer

1 Badezimmer

54 m² Wohnfläche

54 m² Nutzfläche

36 m² Außenfläche

barrierefreiAufzugTerrasseBadewanneFußbodenheizungGartenflächeFliesenParkett

Zum Wohngebäude

Das Wohngebäude besticht durch beste Lage innerhalb des Ortes, seine moderne Bauausführung und ein hochwertiges Erscheinungsbild. Das Gebäude verfügt über ein Erdgeschoß und zwei Obergeschoße mit 22 Wohnungen. Alle Wohnungen verfügen über Balkone oder Terrassen, alle Erdgeschoss-Wohnungen haben einen Garten. Zur Wohnanlage gehört auch ein eigener KinderspielplatzKFZ Stellplätze sind vorhanden.

 

Lage

Traismauer liegt im unteren Traisental in Niederösterreich, 28,14% sind bewaldet. Traismauer befindet sich an der Kremser Schnellstraße (S33) (Teil des Wiener Autobahnringes „Regionenring“) mit den Abfahrten „Traismauer Nord“ und „Traismauer Süd“ sowie seit 2010 mit der Donaubrücke St. Georg und dem Autobahnknoten Traismauer (B 43). Schienenseitig ist die Stadt durch die Tullnerfelder Bahn erschlossen und bietet damit gute Verkehrsanbindung Richtung Tulln, Wien und natürlich St. Pölten.

Das Gebäude selbst befindet sich in ruhiger Wohnlagen im Nordosten von Traismauer. In unmittelbarer Nähe finden Sie alles, was Sie für den täglichen Bedarf benötigen. Ärzte und Apotheken sind bequem zu Fuß oder mit dem Fahrrad erreichbar. Auch für Familien ist diese Lage ideal, denn sowohl eine Schule als auch ein Kindergarten befinden sich in der Nähe. Ihre Einkäufe können Sie bequem in einem Supermarkt und einer Bäckerei erledigen, die ebenfalls nur wenige Gehminuten entfernt sind.

Zur Wohnung

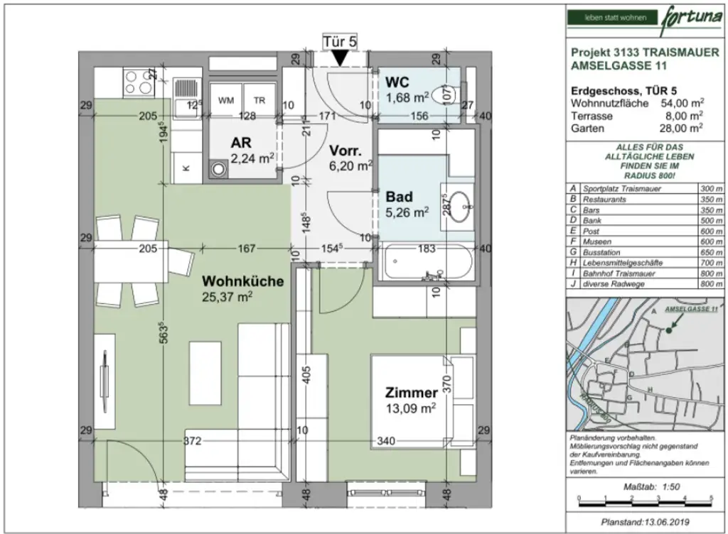
Die schicke 2-Zimmerwohnung im Erdgeschoss betritt man durch den gepflegten Eingangsbereich, welcher ausreichend Platz für eine Garderobe sowie den zentralen Zugang zu allen Räumlichkeiten der Wohnung bietet. Unmittelbar links vom Eingangsbereich befindet sich das Badezimmer mit Duschbadewanne und ein seperates WC. Beide Nassräume sind durchgehend mit modernen Fließen ausgestattet. Ein Abstellraum schafft Stauraum für nützliche Alltagsgegenstände. Das Schlafzimmer bietet genügend Platz für ein großes Bett und einen Kleiderschrank. Der Wohn- Essbereich ist mit einer Einbauküche sowie modernen Gerätschaften ausgestattet. Die großen Fenster sorgen für viel Licht im Wohnraum, der helle Parkett lässt den Raum offen und freundlich wirken. Die sonnige, idyllische Terrasse gewährt mitsamt einer Gartenfläche von 28,00m² Ruhe und Erholung und hat eine angenehme Größe für einen geselligen Grillabend.

Die Wohnung hat eine Wohnfläche von ca. 54,00m², zusätzlich ca. 8,00m² Terrasse und einen 28,00m² großen Garten.

Die Raumaufteilung ist wie folgt:

  • Vorraum
  • großes Schlafzimmer
  • Wohn-Essbereich mit Zugang zum Garten
  • Badezimmer
  • separates WC
  • Abstellraum

Die Parkplätze kosten 8.000 € pro Stück, und es muss mindestens ein Parkplatz dazu gekauft werden.

Übergabe

Die Übergabe kann sofort erfolgen.

Wir weisen darauf hin, dass zwischen dem Vermittler und dem zu vermittelnden Dritten ein familiäres oder wirtschaftliches Naheverhältnis besteht.

Der Vermittler ist als Doppelmakler tätig.

Ausstattung

Fliesen, Parkett, Fußbodenheizung, Einbauküche, Personenaufzug, Nordbalkon / -terrasse, Badewanne, Luftwärmepumpe, Kabelkanäle Unterputz, Glasfaseranbindung, Deckenleuchten, Massiv, Doppel- / Mehrfachverglasung, Ziegel

Lage und Verkehrsanbindung

- Ruhige Wohngegend mit guter Infrastruktur - In unmittelbarer Nähe zum Stadtzentrum und zur Naherholung - Umgeben von Grünflächen und Parks - Gute Anbindung an Autobahn und öffentliche Verkehrsmittel - Einkaufsmöglichkeiten und Restaurants in der Nähe - Familienfreundliche Umgebung mit Spielplätzen und Sportanlagen in der Nähe - Historische Sehenswürdigkeiten und kulturelle Angebote in der Umgebung

Grundriss

Lageplan

Inhalt wird geladen
Preise
Kaufpreis
185.900,00 €
Betriebskosten netto
133,23 €
Betriebskosten brutto
146,55 €
Betriebskosten brutto
133,23 €
Monatlich gesamt brutto
146,55 €
Monatliche Kosten USt.
13,32 €
Vermittlungsprovision
Provision
3% des Kaufpreises zzgl. 20% USt.
Fakten
Objekttyp
Wohnung
Wohnfläche
54 m²
Terrassenfläche
8 m²
Gartenfläche
28 m²
Nutzfläche
54 m²
Toiletten
1
Terrassen
1
Stockwerk
EG
Baujahr
2020
Gebäude
Neubau
Zustand
Erstbezug
Status
verfügbar
Energieeffizienz
Energieausweisart
Energiebedarfsausweis
HWB
21,63 kWh/(m²a)
HWB-Klasse
A
FGEE
0,81
FGEE-Klasse
B
Gültig bis
21.10.2028
Eszter Virasztó

WERTIMMOBILIEN Consulting KG

Eszter Virasztó