Tonlage! „Altbau-Fans bitte weiterklicken.“

Lage: 1190 Wien | | Wien

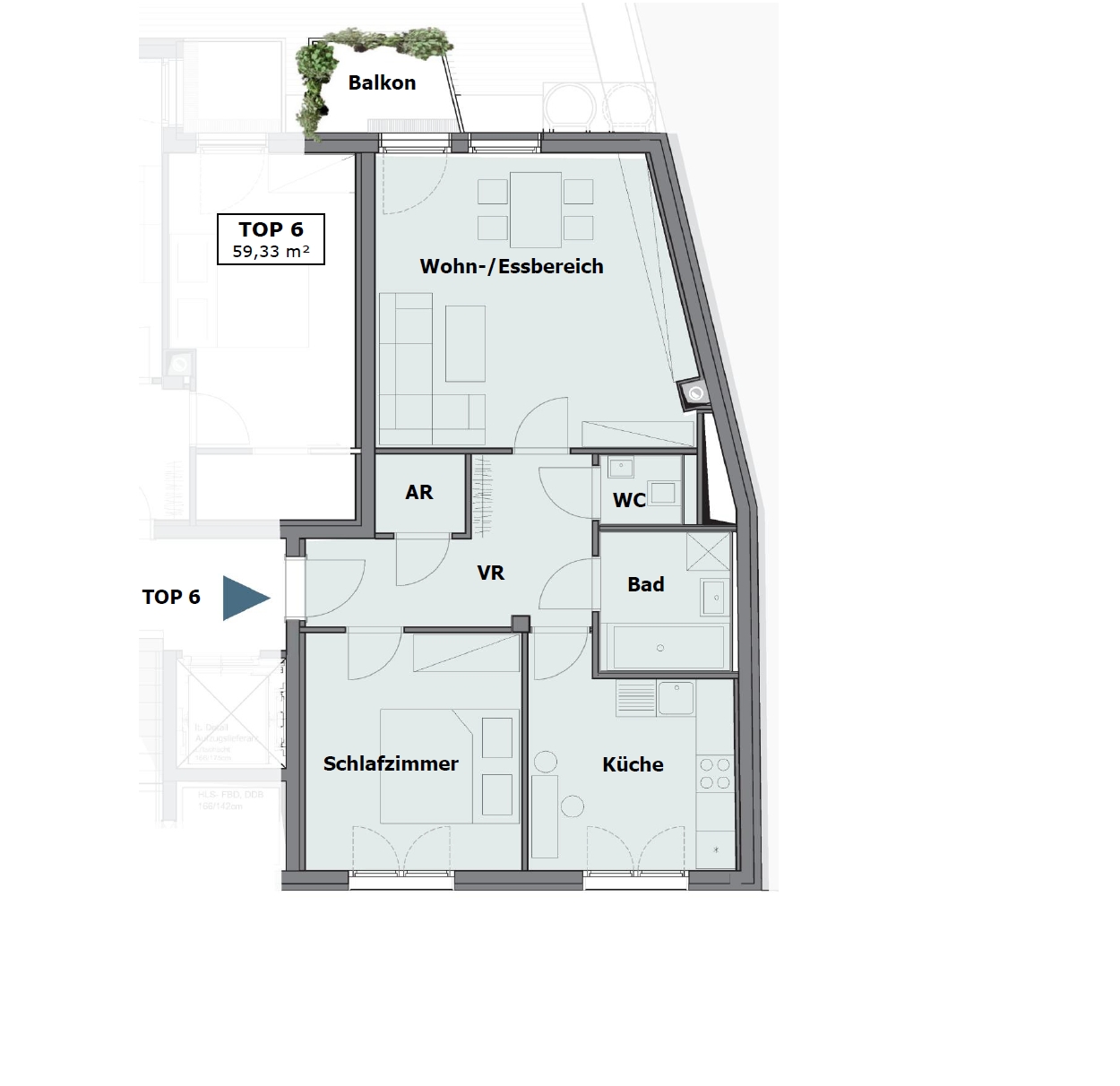
Beschreibung

Neubau-Erstbezug in gefragter Döblinger Lage: moderne 2-Zimmer-Wohnung mit südseitigem Balkon, hochwertiger Ausstattung und Lift. Schlüsselfertig, möbliert, sofort nutzbar. Ruhig gelegen nahe Obkirchergasse und Hugo-Wolf-Park.

Objektbeschreibung

Diese Wohnung befindet sich in einem 2014 errichteten Neubau und wird erstmals bezogen. Die rund 60 m² Wohnfläche sind effizient geschnitten und bieten eine offene Wohnküche, ein separates Schlafzimmer, ein Badezimmer mit Badewanne, WC sowie einen Abstellraum. Der südseitige Balkon erweitert den Wohnraum angenehm ins Freie.

Die Ausstattung ist zeitgemäß und hochwertig: Parkett- und Fliesenböden, moderne Einbauküche, massive Bauweise, Mehrfachverglasung, außenliegender Sonnenschutz sowie öffenbare Fenster. Ein Personenaufzug ist vorhanden. Die Wohnung wird möbliert übergeben.

Lage

1190 Wien – Oberdöbling. Ruhige Wohnlage nahe Obkirchergasse und Hugo-Wolf-Park. Sehr gute Anbindung und Infrastruktur in Gehweite, gleichzeitig grün und zurückgezogen. Döbling zählt zu den stabilsten und wertbeständigsten Wohnlagen Wiens.

Fazit

Eine sofort nutzbare Neubauwohnung in sehr guter Döblinger Lage, mit Balkon, Lift und kompletter Ausstattung. Keine Baustellen, kein Sanierungsbedarf, kein Risiko. Ideal für Eigennutzer wie auch als sichere Anlage.

Lage und Verkehrsanbindung

Okirchergasse, Hugo Wolf Park

Lagepläne

Plan 0

Fakten

Objektnummer:
25805
Objekttyp:
Wohnung
Balkon:
1
Balkon Fläche:
4 m²
Teilbare Fläche ab:
nicht teilbar
Wohnfläche:
60 m²
Nutzfläche
60 m²
Zimmer:
2
Badezimmer:
1
Toilette:
1
Baujahr:
2014
Neubau:
Ja
Zustand:
Erstbezug
Verfügbarkeit:
Verfügbar

Preisdetails

Kaufpreis:
349.000,00 €
Kaufpreis/m²
6.666,67 €
Vermittlungsprovision:
Ja
Provision:
3% des Kaufpreises zzgl. 20% USt. %

Energieeffizienz

HWB:
34 kWh/(m²*a)
Klasse HWB:
B
Gültig bis:
21.06.2021
Energieausweisart:
Energiebedarfsausweis

Ansprechpartner

David PAUL
Anfrage
Max. 500 Zeichen
Ich habe die Datenschutzvereinbarung gelesen und verstanden, und ich stimme der Verarbeitung meiner persönlichen Daten wie darin beschrieben zu. *