Kopfzeile

Traumhaftes Zuhause in Traismauer, NÖ - Modernes Wohnen in Bestlage!

Wohnung zum Kauf in Traismauer (3133), Amselgasse / Objektnummer: 21895

Wohnung zum Kauf in Traismauer (3133) 249.000 €

3 Zimmer

1 Badezimmer

73 m² Wohnfläche

73 m² Nutzfläche

50 m² Außenfläche

barrierefreiTerrasseGartenflächeFliesenParkett

Zum Wohngebäude

Das Wohngebäude besticht durch beste Lage innerhalb des Ortes, seine moderne Bauausführung und ein hochwertiges Erscheinungsbild. Das Gebäude verfügt über ein Erdgeschoß und zwei Obergeschoße mit 22 Wohnungen. Alle Wohnungen verfügen über Balkone oder Terrassen, alle Erdgeschoss-Wohnungen haben einen Garten. Zur Wohnanlage gehört auch ein eigener KinderspielplatzKFZ Stellplätze sind vorhanden.

 

Lage

Traismauer liegt im unteren Traisental in Niederösterreich, 28,14% sind bewaldet. Traismauer befindet sich an der Kremser Schnellstraße (S33) (Teil des Wiener Autobahnringes „Regionenring“) mit den Abfahrten „Traismauer Nord“ und „Traismauer Süd“ sowie seit 2010 mit der Donaubrücke St. Georg und dem Autobahnknoten Traismauer (B 43). Schienenseitig ist die Stadt durch die Tullnerfelder Bahn erschlossen und bietet damit gute Verkehrsanbindung Richtung Tulln, Wien und natürlich St. Pölten.

Das Gebäude selbst befindet sich in ruhiger Wohnlagen im Nordosten von Traismauer. In unmittelbarer Nähe finden Sie alles, was Sie für den täglichen Bedarf benötigen. Ärzte und Apotheken sind bequem zu Fuß oder mit dem Fahrrad erreichbar. Auch für Familien ist diese Lage ideal, denn sowohl eine Schule als auch ein Kindergarten befinden sich in der Nähe. Ihre Einkäufe können Sie bequem in einem Supermarkt und einer Bäckerei erledigen, die ebenfalls nur wenige Gehminuten entfernt sind.

Zur Wohnung

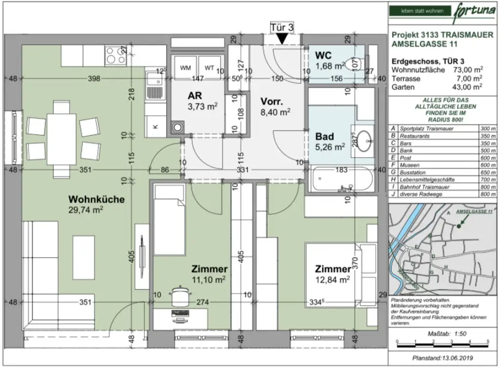
Die schicke 3-Zimmerwohnung im Erdgeschoss betritt man durch den gepflegten Eingangsbereich, welcher ausreichend Platz für eine Garderobe sowie den zentralen Zugang zu allen Räumlichkeiten der Wohnung bietet. Unmittelbar links vom Eingangsbereich befindet sich das Badezimmer mit Badewanne und einem seperat angelegten WC. Beide Nassräume sind durchgehend mit modernen Fließen ausgestattet. Ein Abstellraum schafft Stauraum für nützliche Alltagsgegenstände. Die beiden Schlafräume sind ca. gleich groß, wobei sich als Master-Bedroom das rechte auszeichnet, da es eine Spur größer ist. Der zweite Schlafraum bietet sich idealerweise als Büro an, z.B. um Homeoffice zu betreiben. Der Wohn- Essbereich ist mit einer Einbauküche sowie modernen Gerätschaften ausgestattet. Die großen Fenster sorgen für viel Licht im Wohnraum, der helle Parkett lässt den Raum offen und freundlich wirken. Die sonnige, idyllische Terrasse gewährt mitsamt einer Gartenfläche von 43,00m² Ruhe und Erholung und hat eine angenehme Größe für einen geselligen Grillabend.

Die Wohnung hat eine Wohnfläche von ca. 73,00m², zusätzlich ca. 7m² Terrasse und einen 43,00m² großen Garten.

Die Raumaufteilung ist wie folgt:

  • Vorraum
  • großes Schlafzimmer
  • Büro oder weiteres Schlafzimmer
  • Wohn-Essbereich mit Zugang zum Garten
  • Badezimmer
  • separates WC
  • Abstellraum

Die Parkplätze kosten 8.000 € und es muss mindestens ein Parkplatz dazu gekauft werden.

Wir weisen darauf hin, dass zwischen dem Vermittler und dem zu vermittelnden Dritten ein familiäres oder wirtschaftliches Naheverhältnis besteht.

Der Vermittler ist als Doppelmakler tätig.

Ausstattung

Fliesen, Parkett, Massiv, Ziegel

Lage und Verkehrsanbindung

- Ruhige Wohngegend mit guter Infrastruktur - In unmittelbarer Nähe zum Stadtzentrum und zur Naherholung - Umgeben von Grünflächen und Parks - Gute Anbindung an Autobahn und öffentliche Verkehrsmittel - Einkaufsmöglichkeiten und Restaurants in der Nähe - Familienfreundliche Umgebung mit Spielplätzen und Sportanlagen in der Nähe - Historische Sehenswürdigkeiten und kulturelle Angebote in der Umgebung

Grundriss

Lageplan

Inhalt wird geladen
Preise
Kaufpreis
249.000,00 €
Betriebskosten netto
183,19 €
Betriebskosten brutto
201,51 €
Betriebskosten brutto
183,19 €
Heizkosten netto
57,61 €
Heizkosten brutto
57,61 €
Monatlich gesamt brutto
270,64 €
Monatliche Kosten USt.
29,84 €
Vermittlungsprovision
Provision
3% des Kaufpreises zzgl. 20% USt.
Fakten
Objekttyp
Wohnung
Wohnfläche
73 m²
Terrassenfläche
7 m²
Gartenfläche
43 m²
Nutzfläche
73 m²
Toiletten
1
Terrassen
1
Stockwerk
EG
Baujahr
2020
Gebäude
Neubau
Zustand
neuwertig
Status
verfügbar
Energieeffizienz
Energieausweisart
Energiebedarfsausweis
HWB
21,63 kWh/(m²a)
HWB-Klasse
A
FGEE
0,81
FGEE-Klasse
B
Gültig bis
21.10.2028
Eszter Virasztó

WERTIMMOBILIEN Consulting KG

Eszter Virasztó